Residenza Dalla Chiesa – Calusco d’Adda
Un arioso trilocale, posto al piano primo e senza barriere architettoniche, ideale per chi vuole la serenità di una casa comoda ed efficiente, all’interno un apprezzabile nuovo contesto dal design moderno e raffinato.
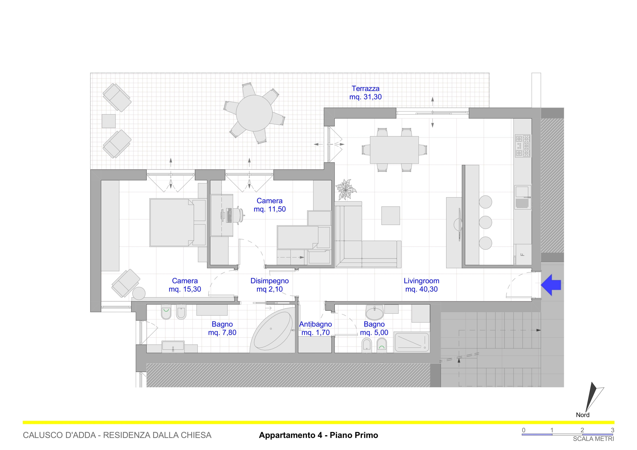
La soluzione proposta è un comodo trilocale dagli ambienti luminosi e razionali, esposto al sole tutto il giorno: l’ingresso è separato e nasconde alla vista il soggiorno che, con la cucina a vista, si apre all’esterno mediante le grandi vetrate che permettono alla preziosa loggia di essere parte integrante degli ambienti interni; c’è un comodo bagno con ripostiglio a servizio della zona living e, senza perdere inutilmente spazio, la zona notte col bagno grande e le 2 comode camere, entrambe affacciate sulla terrazza.
La distribuzione interna e le finiture sono ancora completamente personalizzabili a seconda dei TUOI gusti
La Residenza Dalla Chiesa sorge nella nuova zona residenziale, a ridosso del prezioso e sempre verde Parco dell’Adda che, seppure in zona riservata e tranquilla, è ricca di aree pubbliche attrezzate ed infrastrutture che TI consentono di essere al centro del tessuto urbano.
Oltre alla positiva vicinanza del verde, apprezzerai sicuramente x te ed i TUOI cari, la comodità di avere la piscina, il campo sportivo e i principali parchi attrezzati a pochi passi e lontano da strade trafficate, le scuole e la parrocchia a 15 minuti di passeggiata ed in soli 5 minuti di bicicletta potrai raggiungere la stazione ferroviaria.
Per Noi, TU sei importante e per questo è stata riservata particolare attenzione agli impianti tecnologici che TI permettono di abitare una casa di assoluta qualità e dall’elevata efficienza energetica. La casa è in CLASSE A, ci sono i pannelli solari, la Ventilazione Meccanica Controllata ed i più attuali sistemi di riscaldamento e raffrescamento per assicurarTI il miglior comfort durante tutto l’anno. Un occhio di riguardo anche all’ambiente: non c’è gas.
Al Tuo appartamento è abbinata un’utilissima cantina e, se vuoi, puoi completare l’investimento con l’autorimessa che più si adatta alle Tue esigenze, a partire da € 25.000.
L’architettura impiegata e l’utilizzo del vetro quale elemento principale, vuole permettere alla luce naturale di inondare gli ambienti e consentire al verde circostante di diventare parte integrante di casa TUA
| CONSISTENZA | MQ | PERCENTUALE | COMMERCIALE |
|---|---|---|---|
| Abitazione | 98 | 100 | 98 |
| Terrazza | 31 | 50 | 15,5 |
| Tot. 129 | Tot. 113,5 |





Confronta Strutture
Confronta